2P/2 - budynek o powierzchni 91,89 m², działka 88 m² - cena 714 000 zł - z gotowym ogrodem !
Nad Strumykiem to nowoczesne i kameralne osiedle domów w zabudowie szeregowej z własnymi ogrodami - Nad Strumykiem , położone w dzielnicy Jędrzychów w Zielonej Górze. To miejsce, które spełni oczekiwania osób ceniących wygodę, bezpieczeństwo i atrakcyjną lokalizację. Kupujący nie ponosi kosztów prowizji ani PCC!
Ten wyjątkowy kompleks składa się z 15 eleganckich segmentów, każdy dwupiętrowy, z własnym ogrodem oraz prywatnym miejscem parkingowym. Zdjęcia zewnętrznych budynków przedstawione w galerii są aktualnym stanem osiedla i nie są wizualizacjami.
Kluczowe zalety osiedla Nad Strumykiem:
- Przemyślany układ pomieszczeń: przestronna część dzienna, trzy komfortowe sypialnie, dwie łazienki, brak skosów na piętrze
- Energooszczędne, wysokiej klasy budynki w nowoczesnej technologii prefabrykacji betonowo-keramzytowej
- Kompleksowe zagospodarowanie terenu: zadbana zieleń, chodniki, miejsca postojowe, ławki i stojaki rowerowe
- Każdy segment z własnym, ogrodzonym ogrodem - prywatność i bezpieczeństwo gwarantowane
- Osiedle zamknięte szlabanem, zapewniające bezpieczeństwo i spokojną codzienność
- Doskonała lokalizacja: szybki i bezproblemowy dojazd do centrum Zielonej Góry
- Niskie koszty zakupu i utrzymania nieruchomości- brak PCC i prowizji
- Możliwość dokupienia miejsca parkingowego za jedyne 19 000 zł
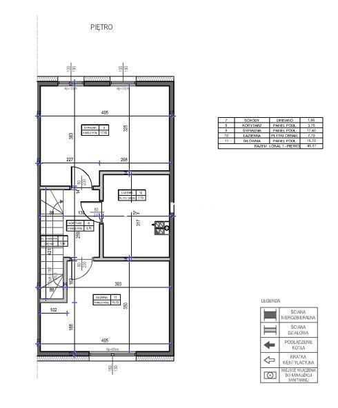
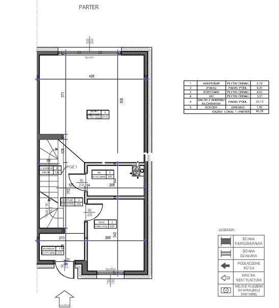
Funkcjonalny układ mieszkania o powierzchni 88,03 m²:
Parter (43,32 m²):
- Przestronny pokój dzienny z kuchnią - 22,28 m²
- Sypialnia - 8,55 m²
- Łazienka - 3,19 m²
- Korytarz - 4,59 m²
- Wiatrołap - 2,75 m²
- Klatka schodowa - 1,96 m²
Piętro (44,71 m²):
- Sypialnia - 16,79 m²
- Sypialnia - 14,93 m²
- Łazienka - 7,62 m²
- Korytarz - 3,41 m²
- Klatka schodowa - 1,95 m²
Standard wykończenia:
Lokale sprzedawane są w stanie deweloperskim, gotowe do własnej aranżacji. Budynki wykonane z nowoczesnej technologii prefabrykacji betonowo-keramzytowej gwarantują wysoką energooszczędność i trwałość.
Wewnątrz zastosowano:
- Ciepły fundament z izolacją styropianową o grubości 20 cm (płyta fundamentowa) lub na ławie (reszta budynków)
- Ściany z keramzyto-betonu o grubości 15 cm (zewnętrzne i wewnętrzne)
- Ściany działowe z paneli Ytong o grubości 10 cm, zbrojone
- Ocieplenie zewnętrzne styropianem klasycznym 20 cm
- Dach ocieplony styropianem 24 cm i membraną PVC firmy Fatra
- Okna PCV trzyszybowe w kolorze antracyt RAL 7016 od zewnątrz i białe od środka
- Tarasowe okna Slide Smart o szerokości 3 m z przesuwem 1,5 m
- Elektryczne rolety zewnętrzne na wszystkich oknach
- Ogrzewanie podłogowe na parterze i piętrze
- Centralne ogrzewanie z dwufunkcyjnego pieca gazowego DeDietrich
- Elewacja wykończona tynkiem mineralnym firmy Caparol, parapety stalowe w kolorze antracytowym
- Drzwi zewnętrzne antywłamaniowe marki MARTOM, model 64 Nordic, przeszklone z podwójnym zamkiem Wilka
Infrastruktura i zagospodarowanie terenu:
- Wykonany parking, chodniki, miejsca postojowe, zieleń ozdobna
- Części wspólne z ławkami, stolikami, stojakami rowerowymi
- Oświetlenie parkingu i ciągów pieszych
- Osiedle zamknięte i monitorowane, zapewniające pełne bezpieczeństwo mieszkańców
---
Termin realizacji: Osiedle jest już ukończone i gotowe do zamieszkania. Możesz od razu przystąpić do podpisania umowy notarialnej.
Lokalizacja: Nad Strumykiem to doskonałe miejsce - blisko centrum Zielonej Góry, z łatwym dostępem do terenów zielonych. W pobliżu znajdują się przystanki autobusowe, apteki, przedszkola, szkoły oraz sklepy i markety, co zapewnia komfort codziennego życia.
---
Ofertowe domy na osiedlu:
o 2K/1 - 118,88 m², działka 116 m² - sprzedane
o 2L/1 - 118,88 m², działka 106 m² - cena 849 000 zł - wolny
o 2L/2 - 118,88 m², działka 161 m² - sprzedane
o 2M/1 - 88,03 m², działka 93 m² - sprzedane
o 2M/2 - 88,03 m², działka 87 m² - sprzedane
o 2N/1 - 88,03 m², działka 86 m² - sprzedane
o 2N/2 - 88,03 m², działka 142 m² - sprzedane
o 2P/1 - 91,89 m², działka 95 m² - rezerwacja
o 2P/2 - 91,89 m², działka 88 m² - cena 714 000 zł - lokal z gotowym ogrodem - wolny
o 2R/1 - 91,89 m², działka 91 m² - cena 699 000 zł - wolny
o 2R/2 - 91,89 m², działka 143 m² - rezerwacja
o 2S/1 - 91,89 m², działka 85 m² - rezerwacja
o 2S/2 - 91,89 m², działka 82 m² - cena 699 000 zł - wolny
o 2T/1 - 91,89 m², działka 80 m² - sprzedane
o 2T/2 - 91,89 m², działka 133 m² - sprzedane
Agent prowadzący: Marta Hozakowska
Telefon: 665 778 799
Email: adres e-mail
O nas:
Apartament Nieruchomości od 1999 roku specjalizuje się w sprzedaży i wynajmie domów, mieszkań oraz działek w Zielonej Górze i okolicach. Zapewniamy sprawną obsługę transakcji na rynku pierwotnym i wtórnym, regulacje stanów prawnych nieruchomości oraz organizację kredytów.
Zlecenia realizujemy pod nadzorem licencjonowanego pośrednika nr licencji 1717.
Oferta ma charakter informacyjny i nie stanowi oferty w rozumieniu przepisów prawa. Wizualizacje mają charakter poglądowy.
Zapraszamy do kontaktu i obejrzenia osiedla Nad Strumykiem - miejsce, które spełni Twoje oczekiwania na długie lata!
Oferta nr 151850301 wysłana z systemu LocumNet Online








