Kupujący nie płaci prowizji i pcc !
Oferta dla szukających wyjątkowego miejsca do mieszkania, ceniących sobie wygodę i bezpieczeństwo. Także dla tych, dla których ważne jest mieszkanie w nowym, ładnym i uporządkowanym otoczeniu.
Zdjęcia widoczne w galerii nie są wizualizacjami i przedstawiają aktualny stan osiedla.
W czterech budynkach znajduje się łącznie 15 lokali mieszkalnych. Każdy dwupiętrowy, z własnym ogrodem oraz prywatnym miejscem parkingowym.
***Drugie miejsce parkingowe w cenie 19tys***
Szczegóły u Marty Hozakowskiej tel. "665 778 799"
Miejsce parkingowe gratis!
Możliwość dokupienia kolejnego miejsca - 19.000,00 zł
WALORY OSIEDLA:
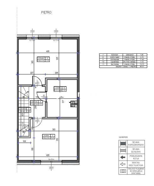
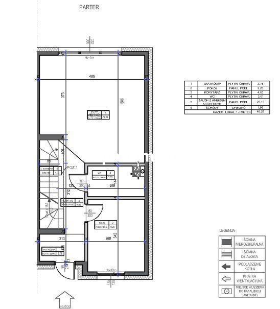
UKŁAD LOKALU 91,89m2:
PARTER 45,28 mkw
- pokój dzienny z kuchnią - 23,13 mkw
- pokój - 9,20 mkw
- łazienka - 3,61 mkw
- korytarz - 4,63 mkw
- wiatrołap - 2,75 mkw
- klatka schodowa - 1,96 mkw
PIĘTRO 46,61 mkw
- pokój - 17,40 mkw
- pokój - 15,70 mkw
- łazienka - 7,79 mkw
- korytarz - 3,761 mkw
- klatka schodowa 1,95 mkw
STANDARD WYKOŃCZENIA:
- Lokale są oddawane w stanie deweloperskim, z pełnym zagospodarowaniem terenu osiedla wraz z zielenią
- Budynki wybudowane w technologii prefabrykatów betonowo - keramzytowych - to nowoczesna technologia zapewniająca wysoką energooszczędność i trwałość budynków
- Fundamenty - "ciepły fundament" - płyta fundamentowa izolowana styropianem XPS o grubości 20cm + 5cm styropian posadzkowy + 7cm wylewka jastrychowa (tylko budynek AB), reszta budynków fundament na ławie, chudy beton 10cm, styropian 10cm + 7cm wylewka z jastrychu
- Ściany konstrukcyjne zewnętrzne z keramzyto-betonu grubość 15cm
- Ściany konstrukcyjne wewnętrzne z keramzyto-betonu grubość 15cm x 2 między domami i 20cm beton między lokalami
- Ściany działowe z paneli Ytong o grubość 10cm, zbrojone
- Ściany zewnętrzne ocieplone styropianem klasycznym o grubości 20cm
- Izolacja termiczna dachu - styropian 24cm, membrana pvc firmy Fatra
- Okna PCV trzyszybowe, kolor na zewnątrz antracyt RAL 7016, wewnątrz białe
- Okna tarasowe - Slide Smart, o szerokości 3m, część przesuwna 1,5m
- Rolety zewnętrzne elektryczne na wszystkich oknach
- Ogrzewanie podłogowe na parterze i na piętrze
- Centralne ogrzewanie - piec gazowy dwufunkcyjny firmy DeDietrich
- Elewacja - tynk mineralny cienkowarstwowy firmy Caparol, parapety stalowe antracytowe w kolorze okien
- Drzwi zewnętrzne antywłamaniowe firmy MARTOM model 64 Nordic, przeszklone, zamek podwójny firmy Wilka
- Osiedle zagospodarowane - wykonany parking, ciągi piesze, miejsca postojowe, zieleń ozdobna
- Części wspólne wyposażone w ławki, stoliki, stojaki rowerowe
- Oświetlenie parkingu oraz ciągów pieszych
- Prywatne osiedle - zamykane szlabanem
TERMINY:
Inwestycja zakończona, możliwość przystąpienia od razu do zawarcia notarialnej umowy sprzedaży !
POŁOŻENIE I OSIEDLE:
Osiedle położone w bliskiej odległości od centrum Zielonej Góry, jednocześnie w otoczeniu terenów zielonych. Niedaleko znajdują się przystanek autobusowy, apteka, przedszkola, szkoły, sklepy, markety.
WYKAZ APARTAMENTÓW NA OSIEDLU:
2K/1 - 118,88m2, ---- powierzchnia działki 116mkw - sprzedane
2L/1 - 118,88m2, cena 823.000,00 zł ---- powierzchnia działki 106mkw - rezerwacja
2L/2 - 118,88m2, ---- powierzchnia działki 161mkw - sprzedane
2M/1 - 88,03m2, cena ---- powierzchnia działki 93mkw - sprzedane
2M/2 - 88,03m2, ---- powierzchnia działki 87mkw - sprzedane
2N/1 - 88,03m2, ---- powierzchnia działki 86mkw - sprzedany
2N/2 - 88,03m2, ---- powierzchnia działki 142mkw - sprzedane
2P/1 - 91,89m2, ---- powierzchnia działki 95mkw - rezerwacja
2P/2 - 91,89m2 , c powierzchnia działki 88mkw - sprzedany
2R/1 - 91,89m2, ---- powierzchnia działki 91mkw - sprzedany
2R/2 - 91,89m2, ---- powierzchnia działki 143mkw - sprzedany
2S/1 - 91,89m2, cena 699.000,00 zł ---- powierzchnia działki 85mkw - rezerwacja
2S/2 - 91,89m2, cena 719.000,00 zł ---- powierzchnia działki 82mkw - wolny
2T/1 - 91,89m2, ---- powierzchnia działki 80mkw - sprzedane
2T/2 - 91,89m2, ---- powierzchnia działki 133mkw - sprzedane
Agent prowadzący:
Marta Hozakowska
TEL. * 665 778 799
EMAIL: * marta.hozakowska@apartament.net.pl
Apartament Nieruchomości świadczy usługi w zakresie sprzedaży i wynajmu domów, mieszkań, działek na terenie Zielonej Góry i okolic od 1999 r. Sprawnie przeprowadzamy transakcje łączone, regulujemy stany prawne nieruchomości, organizujemy kredyty na zakup nieruchomości.
Zlecenie realizowane pod nadzorem licencjonowanego pośrednika nr licencji1717.
Poniższa oferta ma charakter informacyjny, nie stanowi oferty handlowej w rozumieniu art. 66 (1) kodeksu cywilnego oraz innych właściwych przepisów prawnych. Wizualizacja w ofercie ma charakter poglądowy.
Oferta nr 149070301 wysłana z systemu LocumNet Online




















